Pour autant, de nombreuses entreprises ont du mal à déterminer la marche à suivre, ainsi que le « bon dosage ». Pour les aider, Eplan a créé Store Share View. Reposant sur Microsoft Azure, cette solution développée en interne transfère les projets Eplan dans le cloud. En parallèle, elle pose les bases de futures connexions entre différents clouds. Dans un premier temps, Eplan a décidé de présenter au salon de Hanovre la partie de Store Share View permettant de consulter, de réviser et de commenter les projets dans le cadre d’un workflow d’annotation. Ce système constitue le point de départ à partir duquel le fournisseur de solutions basé à Monheim, en Allemagne, accompagne ses clients étape par étape sur la voie du cloud. Tous les participants à un projet (y compris ceux concernés par les processus en aval) bénéficient ainsi d’un accès simple et centralisé aux données Eplan. L’accès aux données est universel : sur tous les appareils et en tout lieu, qu’Eplan soit installé ou non.
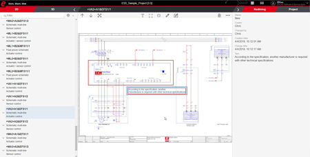
Le nom Store Share View est explicite quant aux possibilités offertes : les projets Eplan peuvent être stockés dans le cloud et partagés avec tous les participants, qui peuvent les consulter à tout moment. Le système ne nécessite aucune installation particulière, pas même l’habituel outil de visualisation requis jusque-là. Connexion, consultation du projet, annotation et indication de l’avancement : pour les utilisateurs, les premiers pas dans l’environnement de projets cloud s’avèrent extrêmement simples. Le système est conçu pour que toutes les informations de projet Eplan nécessaires soient disponibles dans le cloud comme source d’information centrale. Les connaissances d’ingénierie demeurent protégées contre les accès frauduleux via des options de contrôle d’accès. L’attribution des droits dépend des différents services du client.

Il ne s’agit là que d’une première étape en direction du cloud pour les utilisateurs de la plateforme Eplan, mais celle-ci revêt une importance capitale. Auparavant, pour transmettre les schémas aux services en aval (comme ceux responsables de la conception ou de la mise en service de l’armoire de commande), des milliers de pages devaient être imprimées. Or, outre la réduction des coûts, les workflows dématérialisés améliorent considérablement la qualité. Autre point fort : les possibilités de collaboration. Avec Store Share View, des participants externes peuvent également accéder aux données, à condition de disposer des droits adéquats. L’infrastructure de collaboration est disponible via le cloud. Pour les services concernés, cela signifie la fin des fastidieux processus de transfert de projet. Les sous-traitants peuvent facilement consulter l’état du projet via un navigateur web. Autre avantage pratique : les données sont constamment actualisées et les modifications documentées grâce au système d’annotation. Les sources d’erreur sont ainsi éliminées définitivement. La collaboration avec les sous-traitants s’en trouve simplifiée et les workflows en la matière optimisés.
Lorsqu’une entreprise souhaite s’équiper d’un nouveau logiciel, une question fait souvent surface : quid des connexions actuelles avec les infrastructures informatiques ? Sont notamment concernées les interfaces avec les systèmes PDM et PLM, qui doivent généralement être mises à jour ou adaptées au nouveau logiciel. Eplan a également tenu compte de ce point lors du développement de Store Share View. Ainsi, les connexions existantes avec la plateforme Eplan demeurent inchangées. Aucune conversion d’intégration déjà en place n’est nécessaire, les projets Eplan créés lors de la phase d’ingénierie constituant la source de Store Share View. Dès lors, les modifications du stockage des données du projet source sont inutiles.

Outre leur dimension fonctionnelle, les logiciels doivent être aussi conviviaux que possible et répondre à tous les besoins de l’utilisateur. C’est précisément ce qu’Eplan s’est efforcé de faire. Le concept opérationnel est aussi pointu que simple. Pavé tactile, souris ou stylet : tous ces périphériques peuvent être utilisés, de même que tous les types d’appareil courants (ordinateur, écran tactile, appareils mobiles, etc.). Le système offre donc une grande souplesse à l’heure de la mondialisation croissante de l’ingénierie. Grâce à la disponibilité permanente des services cloud, les participants au projet peuvent accéder aux données où qu’ils se trouvent.

Les technologies cloud sont pensées pour permettre à un maximum de participants de collaborer sur un projet. Dans le cadre de l’Industrie 4.0, ces participants travaillent souvent pour différentes entreprises. Les partenaires collaborent pour mettre au point des solutions, établissent des connexions entre leurs logiciels et offrent ainsi des avantages supplémentaires aux utilisateurs. Festo et Lenze sont des partenaires d’Eplan de longue date. Ils ont transféré de nombreuses données sur leurs composants sur le Data Portal d’Eplan et tirent pleinement parti des opportunités offertes par la technologie cloud. Au salon de Hanovre, les deux entreprises présentent des premiers scénarios d’utilisation qui ont été créés à l’aide d’une API Rest dans Store Share View. La technologie API Rest offre un accès aux fournisseurs tiers pour leur permettre d’utiliser de manière optimale les données d’ingénierie créées dans Eplan pour les processus supplémentaires.